• Venta de Apto nuevo en la península de Punta del Este con piscina, barbacoa, Gym y más Código: C992308P

Apartamento

Península, Punta del Este

Venta USD 139.900

  • 1

    Dorms

  • 1

    Baños

  • Sup.

    52 m2

En Venta

ID de la propiedad : 641

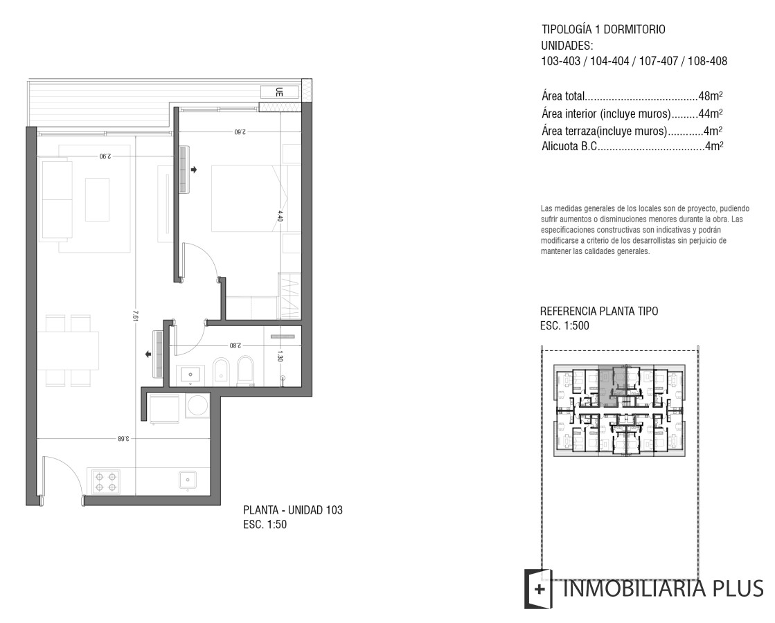
¡Ven a disfrutar de la vida en la hermosa Península de Punta del Este! Esta unidad de 1 dormitorio y 1 baño está ubicada a solo 100 metros del mar. Disfruta de la cocina americana, el living comedor y la piscina interior. Esta unidad cuenta con una superficie propia de 52 m2 y una superficie total de 52 m2. ¡No esperes más y consulta con nuestros asesores para conocer más detalles!

Apartamento en Península - Punta del Este
Ubicado a 100 metros del Mar.
Orientación Norte
Unidad de 1 Dormitorios 1 Baños
Cocina : Americana, Living Comedor ,Piscina Interior
Superficie Propia : 52 m2
Superficie Total : 52 m2

Consulte con nuestros asesores.

Código: C992308P


Consulte por esta y otras opciones
Inmobiliaria Plus
Mas de 3.000 propiedades.

Características

  • Barrio  Península
  • Vista  a Servicios / Amenities
  • Orientacion  Norte
  • Frente al Mar  No
  • Distancia al Mar  100
  • Total m2  52
  • Propios m2  44
  • Dormitorios  1
  • Baños  1
  • Suites  0
  • Cocina  Americana
  • Living Comedor  Si
  • Capacidad Personas  0
  • Cantidad Camas  0
  • Piscina  Interior
  • Gimnasio  Si
  • Vigilancia  Si

Video

 Venta de Apto nuevo en la península de Punta del Este con piscina, barbacoa, Gym y más Código: C992308P

Ubicación

El Mesana esquina La Galerna , Península, Punta del Este

Solicita mas información

Propiedades Similares

Apartamento N° 1035 | La Blanqueada

Venta de Apartamento de 1 Dormitorio como nuevo con barbacoa en Larrañaga

  • 1
  • 1
  • 76m²

Apartamento N° 1307 | Tres Cruces

Venta de Apartamento de 1 Dormitorio en La Blanqueada con Barbacoa y más servicios en Montevideo

  • 1
  • 1
  • 40m²

Apartamento N° 1218 | Tres Cruces

Venta de Apartamento en Tres Cruces con Barbacoa, Gym, Cowork y más

  • 1
  • 1
  • 40m²

Apartamento N° 1243 | Tres Cruces

Venta de Apartamento en Tres Cruces con 1 dormitorio barbacoa, sala de estudio y lectura, solarium y ...

  • 1
  • 1
  • 40m²

Apartamento N° 1244 | Tres Cruces

Venta de Apartamento de 1 dormitorio en Tres Cruces con barbacoa, sala de estudio y lectura, solariu ...

  • 1
  • 1
  • 40m²